秋田市柳田
- お気に入りに登録する
- この物件の
- 資料請求
- 来場予約
秋田大学付属病院まで徒歩6分!
秋田大学付属病院をはじめ、様々な医療施設・学校・保育園・スーパー・金融機関など生活に必要な施設がすべて揃った住宅地です。
旧価格公表時期 → 価格改定
2022年3月17日 2025年7月1日
1,200万円 980万円




.jpg)
.jpg)
.jpg)
R7.5/5撮影
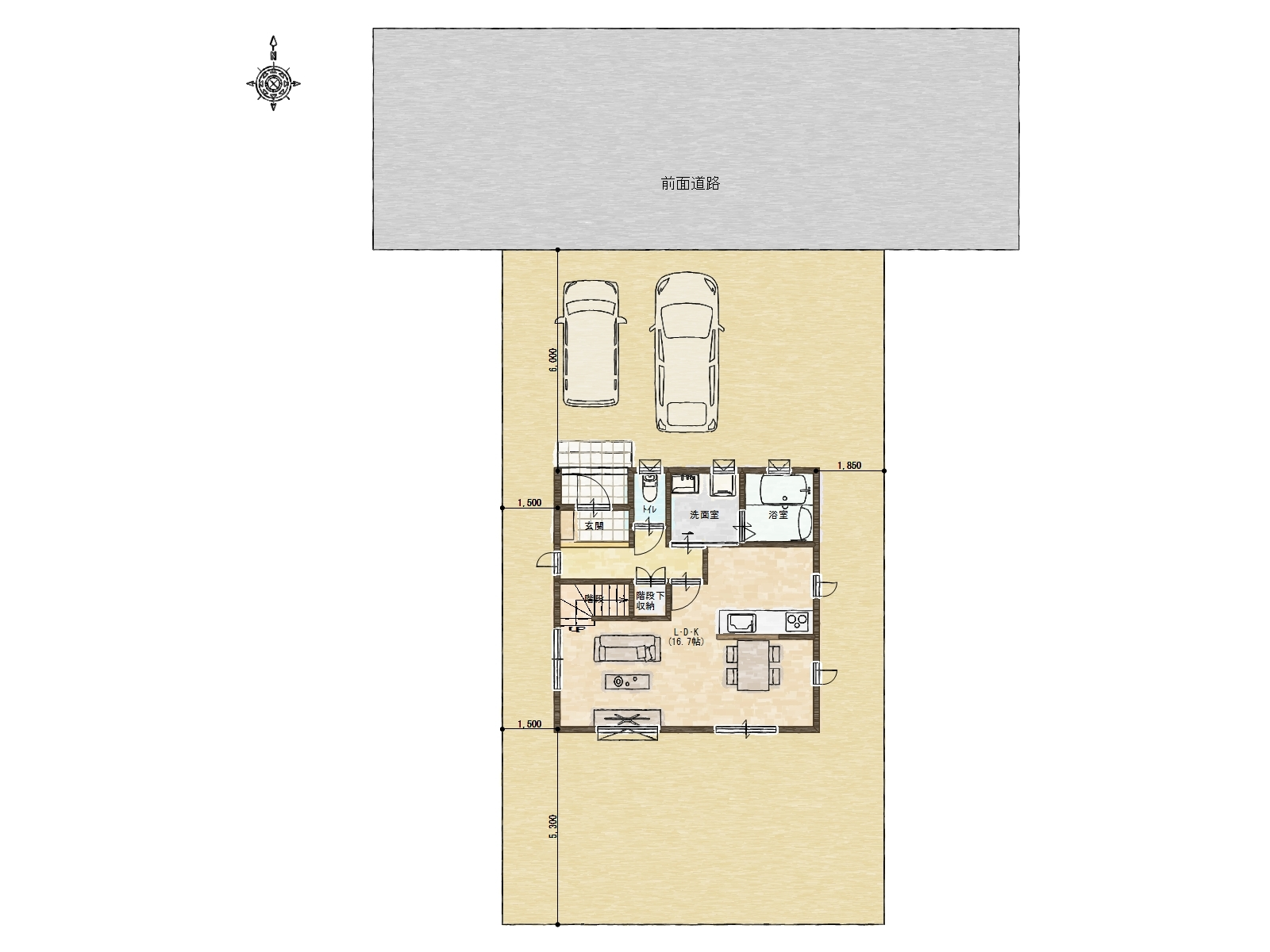
【参考プラン例】

敷地面積:189.95㎡(57.45坪)
1階
|
2階
|





秋田大学付属病院をはじめ、様々な医療施設・学校・保育園・スーパー・金融機関など生活に必要な施設がすべて揃った住宅地です。
旧価格公表時期 → 価格改定
2022年3月17日 2025年7月1日
1,200万円 980万円




.jpg)
.jpg)
.jpg)
R7.5/5撮影

1階
|
2階
|
