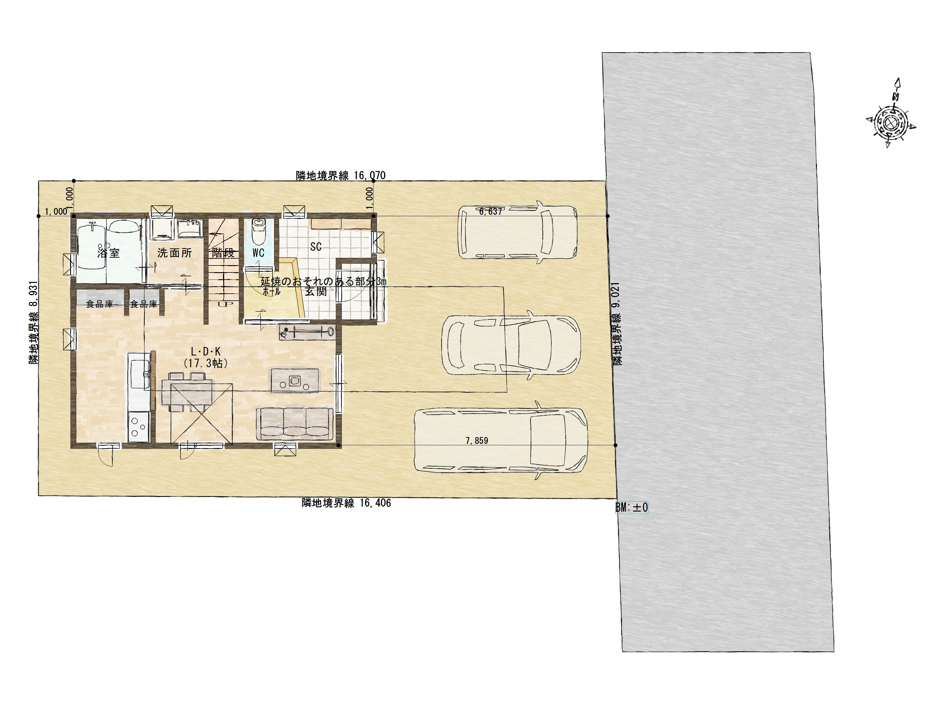
ホーム 不動産情報 将軍野東四丁目<A区画> お気に入り物件一覧 将軍野東四丁目<A区画> お気に入りに登録する 解除する この物件の 資料請求 来場予約 コンセプト 物件概要 アクセス 横山金足線にアクセス良好!!2区画分譲地! 徒歩圏内に様々な施設がそろう利便性のある閑静な立地です! R7.5/1 撮影 【参考プラン例】 敷地面積:145.71㎡(44.07坪) 1階 2階 一覧へ戻る 北店 018-847-1213 南店 018-884-5006 お気に入り一覧を見る この物件の来場予約 この物件の資料請求 北店 南店