秋田市御所野元町五丁目
- お気に入りに登録する
- この物件の
- 資料請求
- 来場予約
毎日がスムーズ!小学校&ショッピングすぐそば
御所野小学校まで徒歩7分、日々の通学も安心♪
大型商業施設まで徒歩圏内で、毎日の買い物や週末のお出かけにも便利な立地です
子育て世代にぴったりの、快適で便利な生活環境が整っています!



.jpg)
.jpg)


.jpg)
R7.10/4撮影
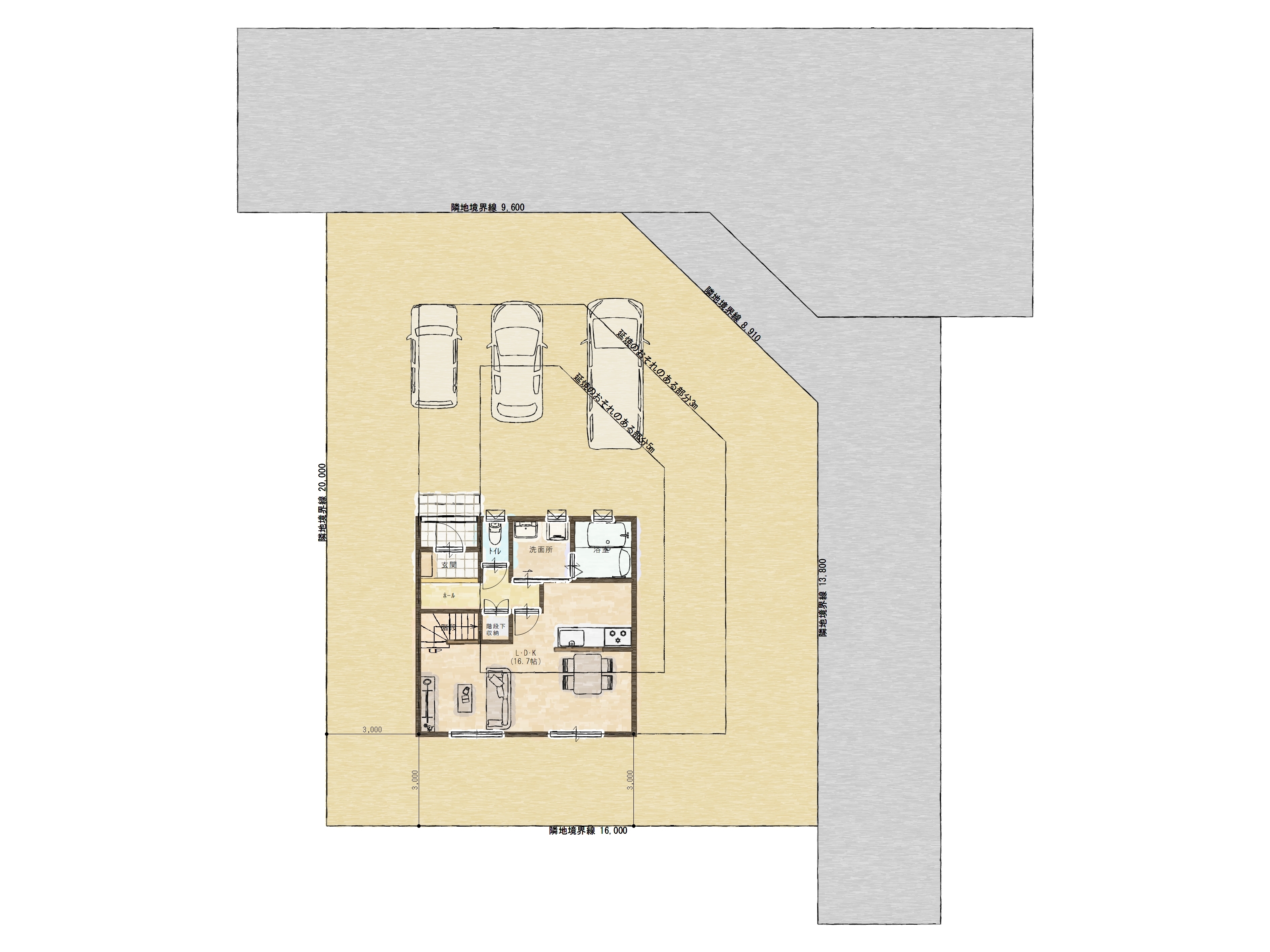
【参考プラン例】
敷地面積:299.81㎡(90.69坪)
1階 |
2階 |





御所野小学校まで徒歩7分、日々の通学も安心♪
大型商業施設まで徒歩圏内で、毎日の買い物や週末のお出かけにも便利な立地です
子育て世代にぴったりの、快適で便利な生活環境が整っています!



.jpg)
.jpg)


.jpg)
R7.10/4撮影
1階 |
2階 |
