秋田市広面字釣瓶町<B区画> 宅地分譲
- お気に入りに登録する
- この物件の
- 資料請求
- 来場予約
生活に必要な設備はすべて徒歩圏内にある好立地分譲地!
人気の駅東エリア!!
保育園~中学校まで徒歩圏内。
近くに総合病院、ショッピング施設があり子育て世帯に魅力的な物件です。






R7.5/5撮影
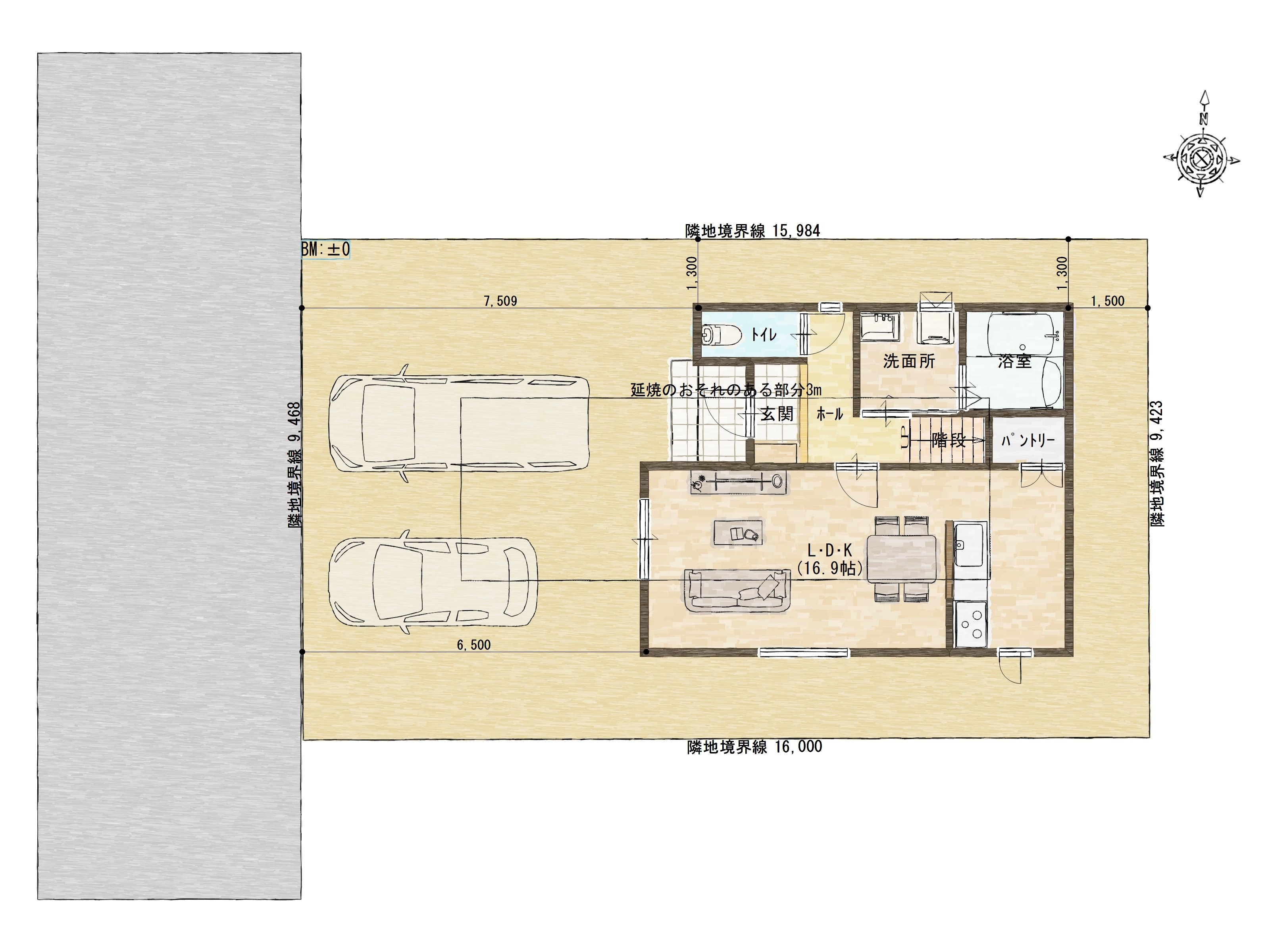
【参考プラン例】
敷地面積:151.06㎡(45.69坪)
1階 |
2階 |





人気の駅東エリア!!
保育園~中学校まで徒歩圏内。
近くに総合病院、ショッピング施設があり子育て世帯に魅力的な物件です。






R7.5/5撮影
1階 |
2階 |
